Saltar navegación

HERRERA CONSIGUE 1.000.000 ¿ PARA LA AMPLIACIÓN Y MEJORA DE LA RESIDENCIA MUNICIPAL DE MAYORES

WhatsApp Image 2025-10-18 at 19.45.10

HERRERA CONSIGUE 1.000.000 € PARA LA AMPLIACIÓN Y MEJORA DE LA RESIDENCIA MUNICIPAL DE MAYORES

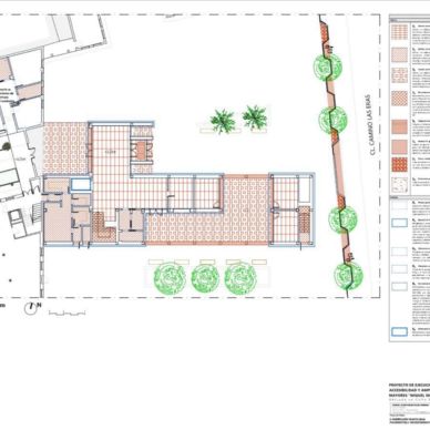
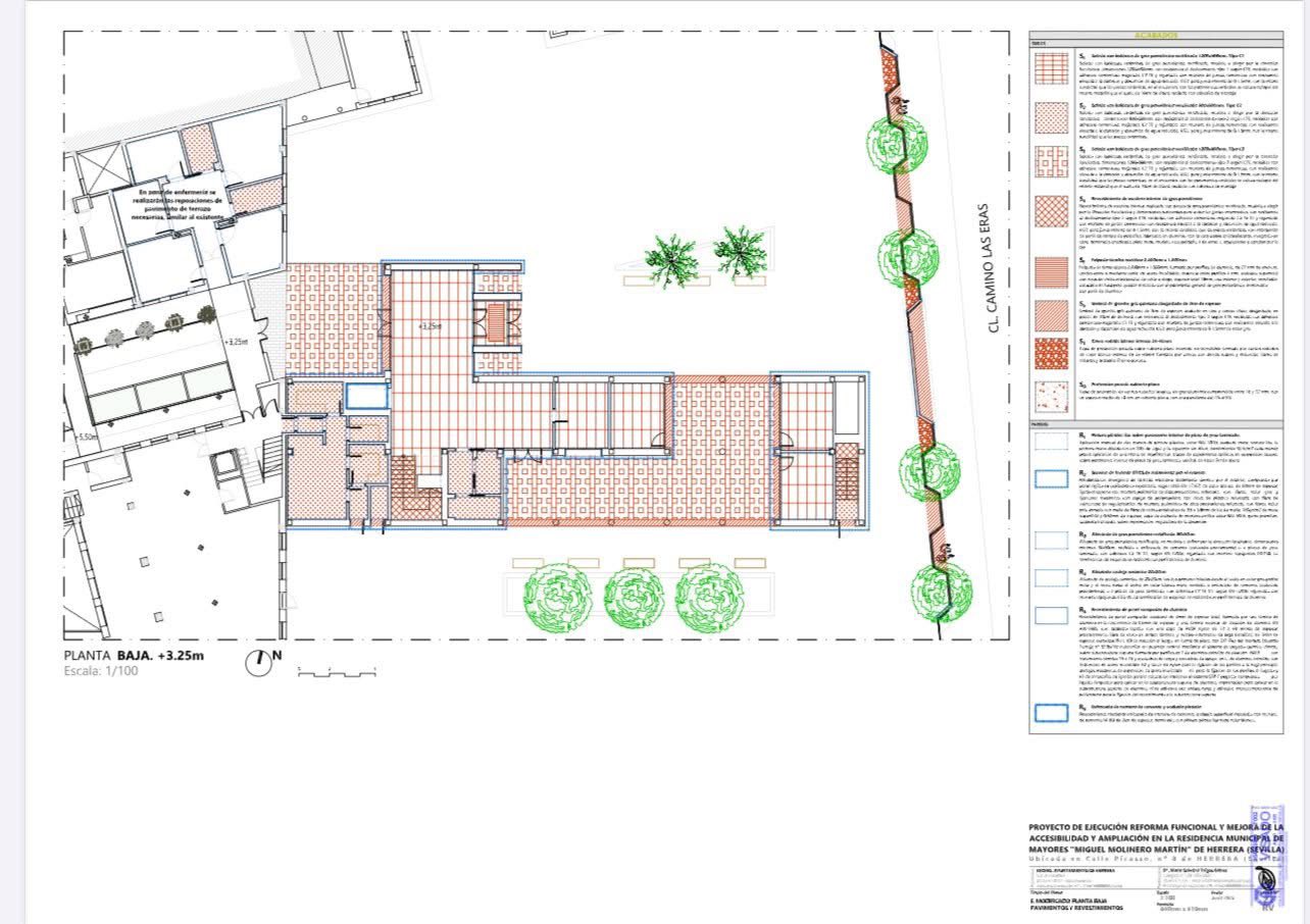
El Ayuntamiento de Herrera ha obtenido una subvención de 1.000.000 € de la Diputación de Sevilla, a través del Fondo Provincial 2030, para llevar a cabo una gran remodelación y ampliación de la Residencia Municipal de Mayores “Miguel Molinero”.
 
Esta importante inversión supondrá un salto de calidad en la atención, la comodidad y la accesibilidad, reforzando uno de los servicios públicos más humanos y esenciales de nuestro municipio.
 
El proyecto permitirá ampliar la capacidad de la residencia de 59 a 72 plazas, además de modernizar y redistribuir sus espacios para hacerlos más funcionales.
 
Entre las principales mejoras previstas se encuentran:
  • Nueva entrada principal por la zona de “Eras Sur”, más accesible y funcional.
  • Ampliación de zonas comunes y espacios asistenciales.
  • Construcción de una cocina completamente nueva, moderna y equipada.
  • Redistribución interna del edificio para mejorar la movilidad y el aprovechamiento de los espacios.
  • Creación de una nueva zona ajardinada, más acogedora y accesible.
  • Adaptación completa a la accesibilidad universal.
  • Mejoras en eficiencia energética y confort climático.
 
Esta actuación tendrá un gran impacto social, generará empleo local y mejorará la calidad de vida de nuestros mayores, consolidando a Herrera como un referente en la atención y el cuidado de las personas mayores.