REFORMA, AMPLIACIÓN Y MEJORA DE ACCESIBILIDAD DE LA ESCUELA INFANTIL EL JARDÍN DE LOS PEQUEÑINES
- ???label.link.back???
- ???label.link.share???
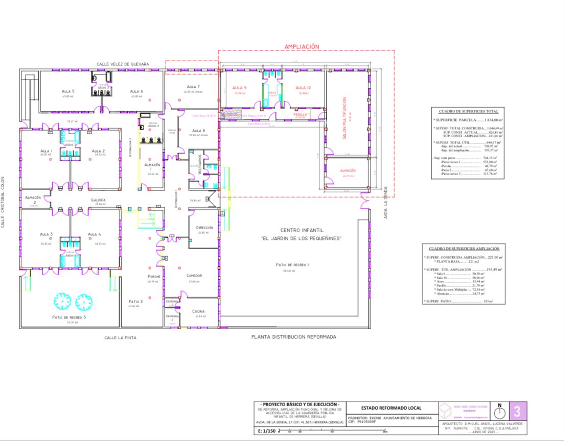
El Ayuntamiento de Herrera ha elaborado un ambicioso proyecto para la ampliación y mejora integral de la Escuela Infantil “El Jardín de los Pequeñines” con un presupuesto de ejecución material de 497.758,96 €.
De esta forma, el consistorio trabaja con la Junta de Andalucía para incluir estas considerables mejoras en el presupuesto andaluz de 2026.
Según la memoria técnica, el proyecto contempla:
- La ampliación del edificio existente mediante un nuevo volumen anexo, que permitirá crear nuevas aulas y espacios polivalentes.
- La redistribución de los espacios interiores actuales, optimizando su funcionalidad y adaptándolos a las necesidades pedagógicas modernas.
- La creación de un nuevo acceso independiente para el área de administración.
- La mejora de la accesibilidad general del centro, cumpliendo con los estándares normativos.
- La reorganización y mejora del patio exterior y zonas de juego, dotándolas de mayor seguridad, sombra y comodidad.
- La implementación de mejoras en eficiencia energética y confort térmico, con materiales sostenibles y de bajo consumo.
El objetivo es claro: dotar a este centro docente de unas instalaciones modernas, cómodas y seguras, que permitan a los más pequeños crecer, aprender y desarrollarse en un entorno estimulante, cálido y plenamente adaptado a sus necesidades.
El Ayuntamiento de Herrera pone el foco en nuestros niños y niñas, quienes son el corazón del presente y la esperanza del futuro. Este proyecto es una declaración de compromiso con ellos.

